SH 청년주택 모집공고입니다. 공식 명칭은 서울 사회주택으로 청년 등 시민이 부담가능한 임대료로 오랫동안 안심하고 살 수 있는 주택으로 사회적경제주체가 공급하고 운영하는 임대주택입니다. 사회주택 운영주체는 입주자들이 주도적으로 공동체성을 회복할 수 있도록 다양한 커뮤니티 공간을 활용한 프로그램을 운영·지원합니다.
전월세난 지속에 따른 민간 임대주택 확대가 필요한 상황에서 1인 가구 증가, 청년 세대의 주택 주거비 부담 문제 등을 해결하기 위해 주거안정과 주거권을 보장하는 지속가능한 주거대안으로 사회주택 정책이 마련되었습니다.
사회주택은 민간에서 공급하는 주택보다 시세 80% 수준으로 공급되며, 최장 10년 거주 가능합니다.
보증금에 대해 중기청 대출과 버팀목 대출 신청이 가능하며, 주변 환경과 교통 등 생활환경도 좋다고 판단됩니다.

1. 주택 개요
1) 주소: 서울시 강북구 솔매로 7다길 15
2) 입지 교통: 북한산국립공원, 북서울꿈의숲 등 우수한 자연환경, 우이신설선 삼양역 도보 7분(도보 2분 거리에 버스 정류장), 도서관 아트센터 등 문화시설과 대형마트, 시장 등 생활편의시설 다수.
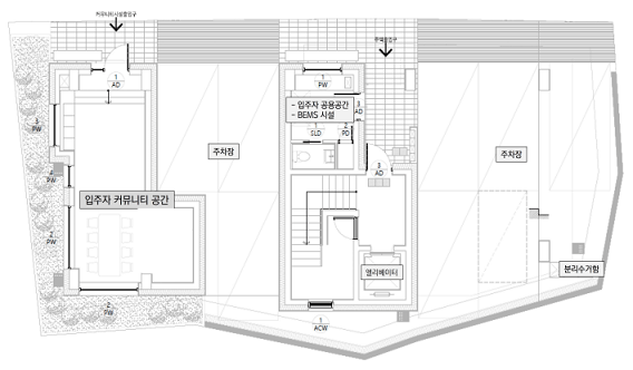
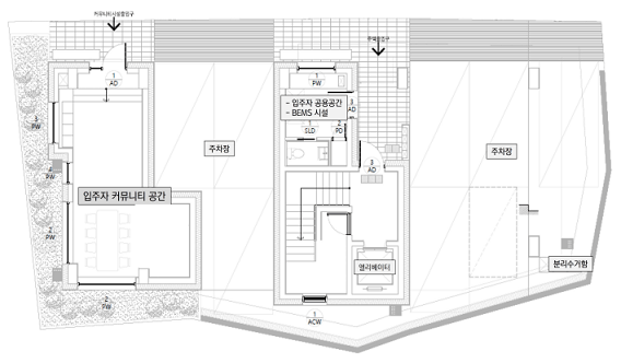
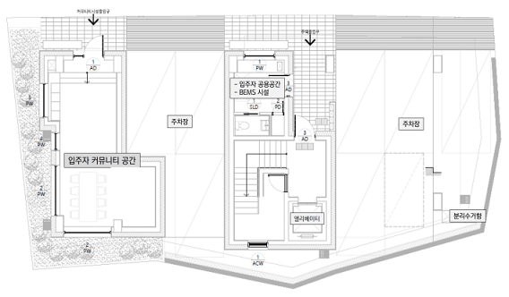
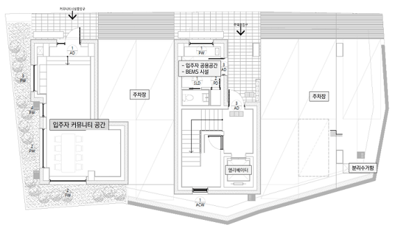
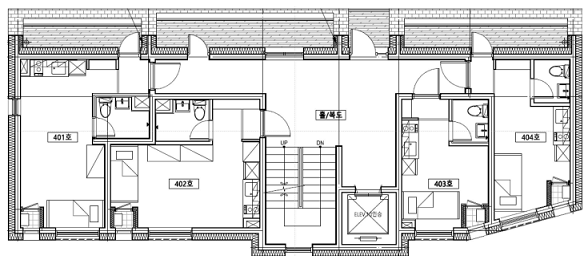
2. 평면도 및 시설
개별실 설치 시설: 에어컨, 주방시설, 냉장고, 세탁기, 신발장 등
![]() |
![]() |
(좌) 1층 평면도, (우) 4층 평면도
3. 임대 조건
모집 세대: 총 19세대 중 잔여세대 201호, 202호, 204호, 205호, 301호, 302호, 303호, 304호, 404호, 502호 등 잔여세대 10개 호
- 관리비에는 정화조 청소비 공용공간 청소 방역비 화재보험료 등이 포함되어 있습니다.
- 공용공간은 주차장 커뮤니티 공간 옥상 등 입주자 전원이 함께 사용하는 공간을 말합니다.
- 세대 개별 사용료 가스요금 전기요금 수도요금 등 는 입주자가 개별적으로 납부합니다.
- 커뮤니티 공간 사용 관련 공과금은 실비 기준으로 별도 부과됩니다.

4. 임대 기간 및 조건
- 최초 계약 기간은 2년이며 2년 단위로 갱신 계약이 가능합니다. 4회에 한하여 재계약 할 수 있어 최초 입주 시부터 최장 10년 간 거주가 가능합니다.
- 갱신 계약 시 무주택 조건 충족 여부를 확인하여 연장 여부를 판단합니다.
- 물가 상승률 등을 고려 2년마다 주택임대차보호법에서 정한 범위(5%) 내에서 보증금 및 월임대료가 조정됩니다 .
- 계약 연장 여부는 계약 만료 6개월 전에 운영사에 통보해야 합니다.
- 입주자가 계약 기간 중 계약을 일방적으로 해지할 경우 위약금이 발생하며 계약 기간 동안 월 임대료와 관리비를 부담할 의무가 있습니다.
- 반려동물 입주는 상호 협의하여 가능합니다.
- 보증금과 월세 상호전환이 가능합니다(보증금 증액 시 월세 감소 보증금 감액 시 월세 증가).
※ 보증금에 대해 중기청 대출과 버팀목 대출 신청이 가능합니다.
5. 신청 자격 및 기준
1) 신청 자격: 2024년 11월 13일 입주자 모집공고일 시점, 아래의 조건을 충족한 자
- 서울시에 거주하는 무주택자 청년 만 19세 이상 39세 이하
※ 청년 세대주 세대원 상관없이 부모님이 주택을 소유해도 신청자 본인이 무주택자이면 가능합니다.
※ 입주자 모집공고일 기준 서울시 거주 또는 거주 예정인 경우 입주 신청 가능 증빙서류 제출 필수.
2) 소득 기준
도시근로자 가구원수별 가구당 월평균소득의 120%
(1인 4,179천원 이하, 2인 6,498천원 이하, 3인 8,638천원 이하)
3) 자산 기준: 2억 7,300만원 이하
4) 자동차가액 기준: 3,708만원 이하
※ 참고사항
- 월평균소득은 위 가구원에 해당하는 세대원의 월평균소득을 입주신청자가 제출하는 서류를 기반으로 검증하며 근
로소득(상시 일용 자활 공공), 사업소득(농업 임업 어업 기타), 재산소득(임대 이자 연금), 기타소득(공적이전소득)을 말합니다.
- 소득금액 및 자산 산정 시점은 입주모집 공고일이며 입주신청자가 제출한 서류를 기준으로 합니다.
- 주민등록등본에 등재된 세대구성원 전원의 세전소득을 모두 합산하여 산정합니다.
6. 입주자 모집 절차
- 신청서 접수: 모집 공고 게시일(2024년 11월 13일) 이후 상시 이메일 zipdeco@daum.net ※ 우편 방문 접수 불가
- 주택 투어: 개별 연락(사전 일정 협의)
- 계약: 계약 시 계약금(임대보증금의 10%)
- 입주: 상시 가능
기타 보다 자세한 사항은 SH 공고 및 공지 페이지 또는 아래 입주자 모집공고문 PDF 파일을 참조하시기 바랍니다.
SH 홈페이지 >>> 공고 및 공지








